Používame cookies

Súbory cookie a ďalšie technológie sledovania používame na zlepšenie vášho zážitku z prehliadania našich webových stránok, na to, aby sme vám zobrazovali prispôsobený obsah a cielené reklamy, na analýzu návštevnosti našich webových stránok a na pochopenie toho, odkiaľ naši návštevníci prichádzajú. Viac info

 

NA PRENÁJOM voľná spevnená plocha + pozemok o výmere 2.000 m2

Interné ID: BV_N_JT_spevnená plocha
Ulica: Južná trieda
Obec: Košice-Juh
Okres: Košice IV
Kraj: Košický kraj
Druh: Pozemky
Typ: Prenájom
Typ pozemku: Priemyselná zóna
Iné:
DOHODOU

Popis nehnuteľnosti

Podnikajte v Košiciach na Južnej triede.
Ak nepotrebujete k podnikaniu ruch centra, ústranie Južnej triedy Vám padne vhod !
V areáli podnikateľského centra je momentálne k dispozícii:

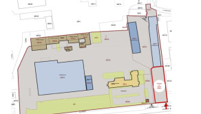
* voľná spevnená plocha č.1 v areáli Južnej triedy; výmera a cena: dohodou.

Ak Vás moja ponuka oslovila, neváhajte ma kontaktovať:
Zodpovedný certifikovaný maklér: Mgr. Beáta VUKUSIC, RSc. +421 905 550 021, beavukusic@gmail.com.
Spoločnosť "bea vukusic plus, s.r.o." - na jednom mieste /Hlavná 18/1, Košice/ nájdete:
- realitnú činnosť - predaj & prenájom nehnuteľností, zviditeľnenie Vašej nehnuteľnosti na najsledovanejších portáloch a sieťach
- finančné poradenstvo - radi Vás odborne prevedieme procesom financovania - máme v tejto oblasti dlhoročné skúsenosti
- zabezpečíme akékoľvek poistenie
- vinkulácie
- právne poradenstvo prostredníctvom advokátskej kancelárie /autorizované zmluvy/
Upozornenie:
Popis nehnuteľnosti - text a fotodokumentácia sú majetkom a autorským dielom spoločnosti "bea vukusic plus, s.r.o.".

Vlastnosti

Status:
aktívne
Vlastníctvo:
korporácia
Plocha pozemku:
2000 m2
Typ zeme:
rovina
Teritórium:
Intravilán
Šírka pozemku:
42 m
Dĺžka pozemku:
84 m
Celková plocha:
2000 m2
Orientácia:
západ

Pozrieť na mape

Maklér

Mgr. Beáta VUKUSIC, RSc.

Mgr. Beáta VUKUSIC, RSc.

CEO

  • Slovensky
  • Česky
  • Magyar
  • English
  • Pусский
  • rusr
  • sora

Radi Vám poradíme